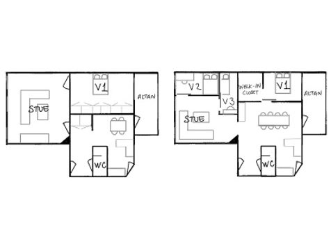
Se hvordan familien på Østerbro fik to ekstra børneværelser og et walk-in closet i soveværelset.
Familien ønskede sig:
– To ekstra værelser børneværelser
– Et stort køkken alrum med plads til 12 spisende gæster
– Walk in closet i forældresoveværelset

Se hvordan familie i Nordhavn fik to ekstra værelser:


Få dit drømmehjem på få kvadratmeter.
Se hvordan familie på Amager fik to ekstra børneværelser.
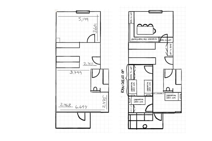
Det ene værelse kan deles i to, når familiens mindste medlemmer får brug for hver deres værelse.


Mine løsninger er kreative og elegante. Som fx. denne løsning, som gav familien på Nørrebro et lækkert forældresoveværelse med lydisolerende glas, og gardin på indersiden.
plads til alt
alt på plads
plads til os
