I en gratis 15-minutters rådgivning gennemgår vi din boligsituation og undersøger muligheder for optimering.
Når du har udfyldt formularen, kontakter jeg dig hurtigst muligt for at aftale et tidspunkt for samtalen.
Jeg deler ikke dine data med andre, og du kan til enhver tid frabede dig yderligere kontakt.
Hvad koster det?
Den første rådgivning er gratis. Mit fokus er at sikre, at jeg kan hjælpe dig, før vi går videre. Hvis vi bliver enige om, at jeg kan bidrage til optimeringen af dit hjem, aftaler vi tidspunkt og pris, der passer dig.
Pakker & Priser
Få tre skræddersyede planløsninger, der kan inspirere jer til at finde den helt rigtige og tidssvarende løsning.
Jeg besøger jer, og I kan fortælle alt om jeres ønsker til drømmehjemmet. Derefter udvikler jeg tre løsningsforslag, som passer til jeres ønsker.
Når vi mødes igen, gennemgår vi tegningerne og jeres forskellige muligheder for at få optimal opbevaringsplads og en funktionel hverdag.
*Pris: 5.500 kr.




Multi funktions designs
- Skræddersyet løsning
- Designtegning
*Pris: Efter aftale






Få fx en seng med indbygget klædeskab og opbevaring.
Perfekt et lille organiseret og praktisk soveværelse.
Hvordan prissættes et tilbud?
- Priser aftales individuelt
- Betaling via MobilePay
- Kørselstillæg udgør 950 kr. pr. time + 7 kr. pr. kilometer fra Nordhavn.
plads til alt
alt på plads
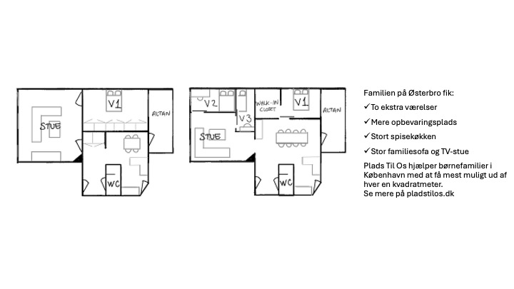
plads til os
Vi har fået to ekstra værelser med flotte glasvæggene. De er lige så lydtætte som almindelige vægge. Lyset stømmer ind.
Endelig er vores hjem blevet organiseret. Vi har fået en mere funktionel hverdag, fordi alt har en plads.
Jeg har fået idéer, som jeg ikke har set før. Det er blevet super fedt, og vi har fået masser af plads til gæster og legeaftaler.